Beoordeeld met een 9,4 op

Antwerpsestraat 14

4611AG BERGEN OP ZOOM

Verhuurd

Verhuurd

Omschrijving

Op zoek naar een ruime en veelzijdige commerciële ruimte op een uitstekende zichtlocatie? Antwerpsestraat 14 biedt een unieke kans voor ondernemers die zich willen vestigen op een prominente en goed bereikbare plek. Gelegen aan de singelroute en op loopafstand van het stadscentrum, is deze ruimte perfect geschikt voor zowel detailhandel als kantooractiviteiten. In de directe omgeving bevinden zich diverse dienstverleners en verschillende winkels, wat zorgt voor een levendige en dynamische zakelijke omgeving.

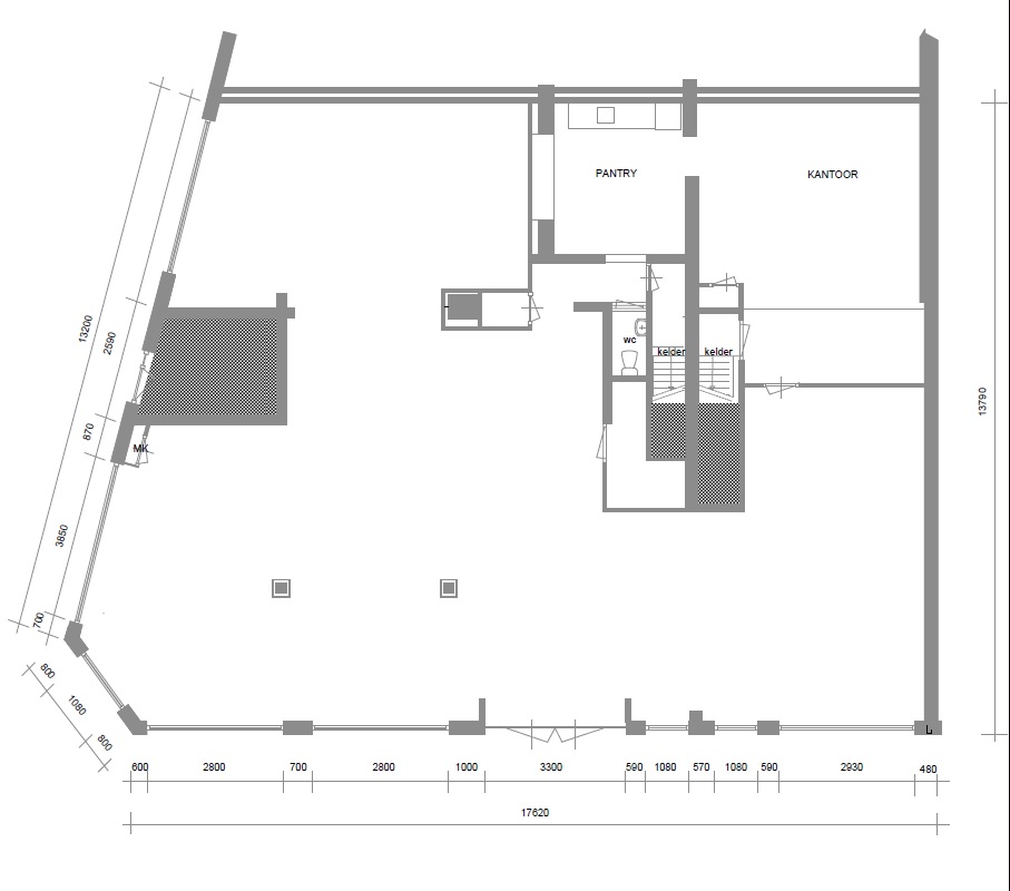
Indeling
De ruimte heeft een verhuurbaar vloeroppervlak van circa 245 m² en beschikt over een zelfstandige entree, een toilet, een keuken met pantry en een moderne verwarmingsinstallatie met een energiezuinige HR-combiketel. Daarnaast is de unit volledig ingericht waardoor de ruimte direct in gebruik kan worden genomen. Dankzij de ruime opzet en de gunstige indeling biedt deze locatie volop mogelijkheden om de ruimte naar eigen wens in te richten, passend bij uw onderneming.

De ligging van het pand is ideaal voor bedrijven die veel waarde hechten aan zichtbaarheid en bereikbaarheid. Dankzij de strategische positie aan de singelroute is het pand eenvoudig bereikbaar voor klanten en medewerkers, zowel met de auto als met het openbaar vervoer. De nabijheid van het stadscentrum zorgt ervoor dat uw onderneming profiteert van de levendigheid en het diverse publiek dat dagelijks in dit gebied aanwezig is.

Huurprijs € 1.950,- per maand exclusief BTW
Oplevering en aanvaarding in overleg

Wilt u uw bedrijf vestigen op een representatieve locatie met uitstekende voorzieningen? Neem dan contact met ons op voor meer informatie of een bezichtiging.

Deze informatie is geheel vrijblijvend en onder voorbehoud van tussentijdse wijzigingen of reserveringen. Aan deze informatie kunnen geen rechten worden ontleend.

Kenmerken

Overdracht

Aangeboden sinds
4 april 2025
Status
Verhuurd
Aanvaarding
In overleg

Bouw

Hoofdfunctie
Winkelruimte
Soort bouw
Bestaande bouw

Oppervlakten

Oppervlakte
245 m² (features.values.in_units_from)
Verkoopvloeroppervlakte
245 m²
Breedte gevel
3300 m

Omgeving

Welstandsklasse
A1

Media

Locatie

Meer informatie?