Beoordeeld met een 9,4 op

Pastoor Kuijpersstraat 3

4625BP BERGEN OP ZOOM

Verkocht

Omschrijving

Welkom aan de Pastoor Kuijpersstraat 3: een vrijstaande bungalow met maar liefst 5 slaapkamers, een garage, kelder, berging én een riante voor- en achtertuin, gelegen in een rustige, kindvriendelijke woonwijk. Dit is zo’n woning waar je binnenkomt en meteen denkt: hier kan ik iets heel moois van maken.

Ja, de woning is gedateerd – maar dat betekent vooral: volop kansen om alles helemaal naar eigen smaak te moderniseren. De ruimte is er, de ligging is top en de basis is solide. Een droomhuis-in-wording voor wie groot wil wonen op één niveau, met extra kamers op de eerste verdieping.

Locatie:
Je woont hier heerlijk rustig, terwijl alle voorzieningen binnen handbereik zijn. Sportvelden, winkels, uitvalswegen én de prachtige bossen liggen op korte afstand. Ideaal voor gezinnen, rustzoekers en natuurliefhebbers.

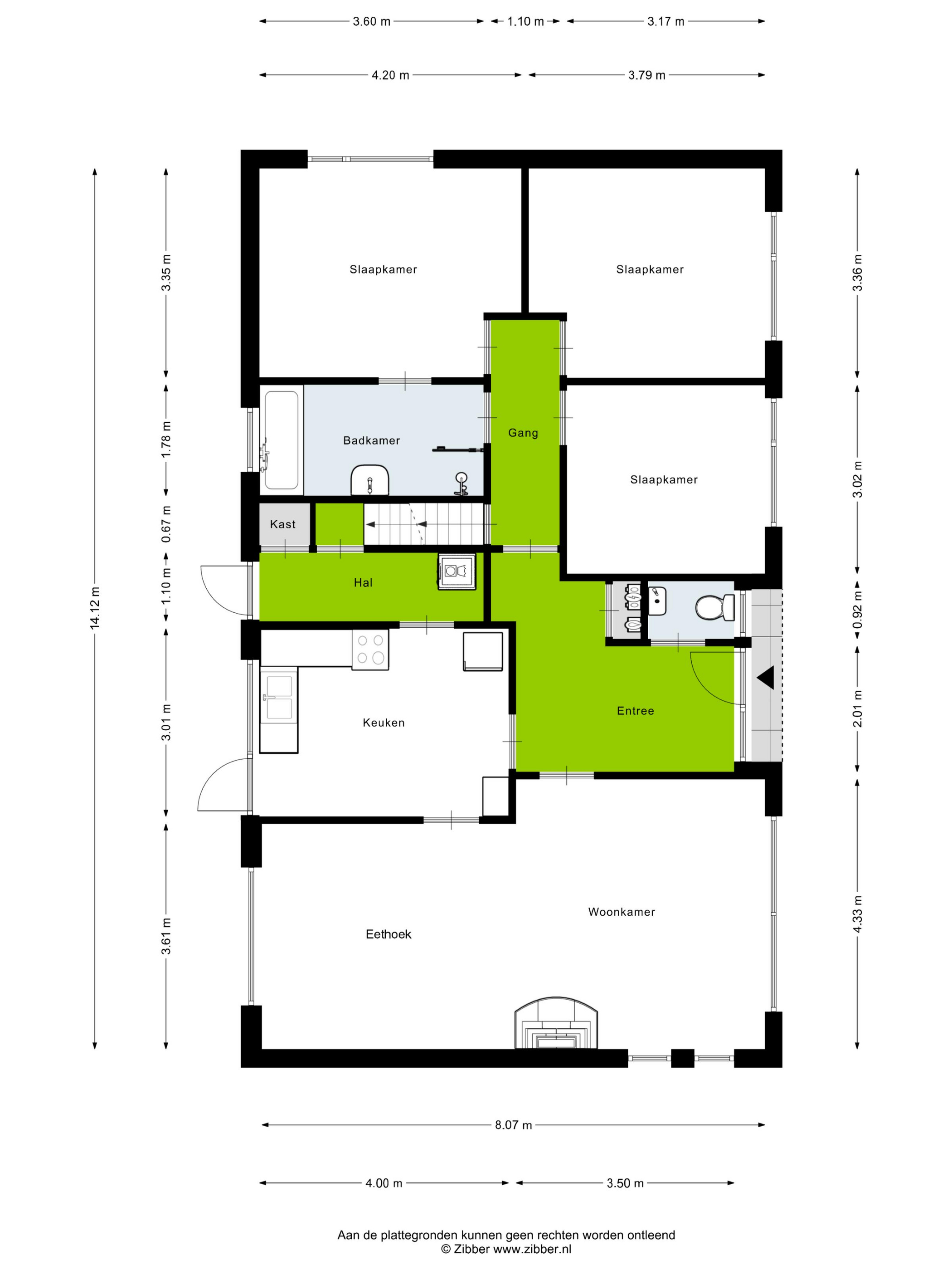
Indeling woning
Oprit & voortuin:
De riante voortuin en ruime oprit bieden plek voor meerdere auto’s. Via het pad bereik je de voordeur, en ook de garage is direct toegankelijk. Een fijne, verzorgde entree met volop ruimte.

Entree & hal:
De hal vormt het centrale punt van de woning en geeft toegang tot het toilet, meterkast, de woonkamer, keuken en de tussenhal richting slaapkamers en badkamer.

Woonkamer:
De woonkamer is een heerlijk lichte en uitnodigende leefruimte, mede dankzij de brede ramen aan beide zijden die zorgen voor een prettige hoeveelheid natuurlijk daglicht gedurende de hele dag. De open haard in schouw vormt een sfeervol middelpunt en geeft de ruimte een warme, knusse uitstraling. Dankzij de royale afmetingen is er volop plek voor een comfortabele zithoek én een gezellige eethoek, waardoor dit de ideale ruimte is om samen te komen, te ontspannen en te genieten van lange avonden met familie en vrienden.

Keuken:
Wauw… zodra je hier binnenstapt zie je het meteen: dit is een ruimte met enorm veel potentie. De afmetingen maken deze keuken uitermate geschikt om om te toveren tot een prachtige leefkeuken. Denk aan een royaal kookeiland, een gezellige bar of een grote eettafel waar iedereen graag aanschuift – hier kan het allemaal. Met de juiste visie en een frisse update creëer je hier moeiteloos jouw eigen droomkeuken.

De huidige keuken is praktisch ingericht en voorzien van een losse oven met kookplaat, spoelbak, afzuigkap en diverse kasten en laden. Via de deur heb je bovendien direct toegang tot de tuin, wat het geheel extra prettig maakt en volop mogelijkheden biedt voor binnen- en buitenleven.

Slaapkamers (begane grond):
Via de tussenhal bereik je de badkamer en 3 ruime slaapkamers. Alle kamers zijn volwaardig en multifunctioneel: slaapkamers, werkkamer, speelkamer of hobbyruimte – jij bepaalt. Deze woning denkt met je mee.

Badkamer:
De badkamer is gedateerd, maar goed van formaat en biedt een uitstekende basis om geheel naar eigen wens te moderniseren. De ruimte is momenteel ingericht met een douche, ligbad, wastafel en een handdoekenradiator. Dankzij het kiepraam is er natuurlijke ventilatie en daglicht. De badkamer is volledig betegeld en klaar om omgetoverd te worden tot een frisse, eigentijdse badkamer die perfect aansluit bij jouw woonwensen.

Eerste verdieping:
Een riante overloop met toegang tot 2 ruime slaapkamers en een praktische berging. Perfect als extra slaapkamers, thuiskantoor, hobbyruimte of chillplek voor tieners.

Kelder:
Als extra beschikt de woning over een kelder – ideaal als voorraadruimte of voor spullen die je niet dagelijks nodig hebt.

Achtertuin:
De achtertuin is écht mega. Hier vind je een terras, een gazon, een vijver centraal in de tuin, een handige berging en toegang tot de garage. En dan begint de fantasie pas echt:
een grote overkapping met buitenliving, een tuinkamer, speeltoestellen, een moestuin, een buitenkeuken… deze tuin biedt alle ruimte om jouw buitenleven-droom waar te maken.

Een woning met karakter, ruimte en eindeloze potentie.
Zie jij jezelf hier al wonen? Dan is Pastoor Kuijpersstraat 3 absoluut een bezichtiging waard!

Algemeen:
- woning is levensloopbestendig;
- maar liefst 5 slaapkamers;
- mogelijkheid om de woning uit te bouwen;
- overdracht in overleg.

Kenmerken

Overdracht

Aangeboden sinds
13 februari 2026
Status
Verkocht
Aanvaarding
In overleg

Bouw

Soort woning
Woonhuis
Bouwjaar
1975
Soort dak
Zadeldak

Oppervlakten en inhoud

Oppervlakte wonen
173 m²
Oppervlakte overige inpandige ruimte
7 m²
Oppervlakte gebouwgebonden buitenruimte
1 m²
Oppervlakte externe bergruimte
32 m²
Perceel
1014 m²
Inhoud
668 m³

Indeling

Aantal kamers
7
Aantal slaapkamers
5
Aantal badkamers
1
Badkamervoorzieningen
Ligbad, douche en wastafel
Aantal woonlagen
3 woonlagen

Energie

Energielabel
C
Isolatie
Dakisolatie, muurisolatie, vloerisolatie en dubbel glas
Verwarming
Cv-ketel
Warm water
Cv-ketel
Cv-ketel
Remeha (combiketel uit 2024)

Buitenruimte

Ligging
Aan rustige weg en in woonwijk
Tuin
Achtertuin, voortuin en zijtuin

Bergruimte

Schuur/berging
Vrijstaand hout

Garage

Soort garage
Vrijstaand steen
Capaciteit
1
Voorzieningen
Elektrische deur

Media

Locatie

Meer informatie?