Beoordeeld met een 9.2 op

Poolsterstraat 24

4624XA BERGEN OP ZOOM

Verkocht onder voorbehoud

€ 239.000,- k.k.

Omschrijving

Een ruim en licht appartement met maar liefst 3 slaapkamers, een riante woonkamer, 2 fijne balkons én een solide basis voor wie graag de handen uit de mouwen steekt. Ideaal voor starters en handige doe-het-zelvers.

Ligging:
Het appartement heeft een gunstige ligging in de directe nabijheid van een winkelcentrum, scholen, sportpark, ziekenhuis en bos en natuurgebied. Tevens is op loopafstand een directe busverbinding.
Uitvalswegen naar Breda, Antwerpen en Rotterdam op enkele autominuten afstand.

Centrale hal:
Entree via centrale hal, appartementencomplex heeft de beschikking over een liftinstallatie, brievenbus en trappenhuis.

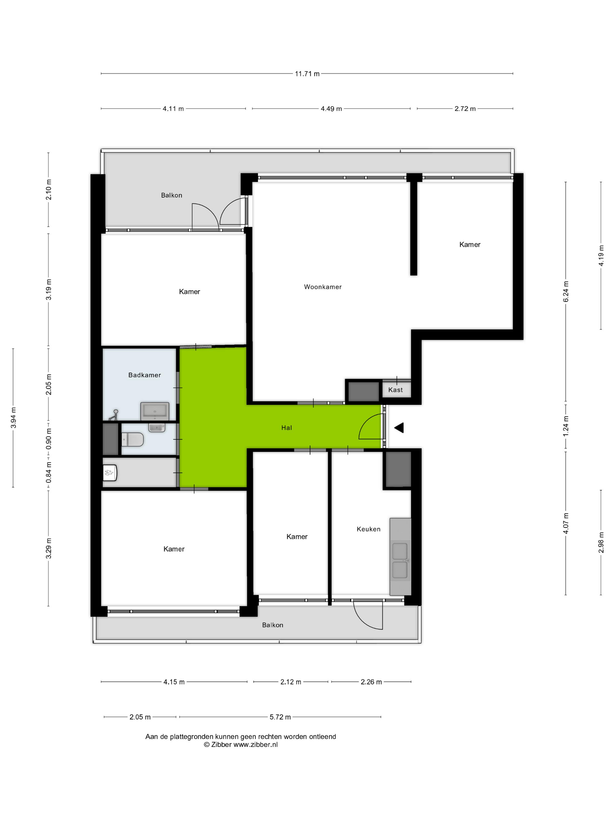
Hal/entree
Bij binnenkomst betreed je de hal. Hier vind je de intercominstallatie en vanuit deze hal heb je toegang tot vrijwel alle vertrekken in de woning.

Woonkamer:
De woonkamer bevindt zich aan de voorzijde van het complex en valt direct op door het prettige lichtinval dankzij een brede raampartij. De ruimte is royaal en biedt volop mogelijkheden voor het creëren van een gezellige zit- en eethoek. Een ingebouwde kast zorgt voor extra opbergruimte, terwijl je via een deur toegang hebt tot het balkon aan de voorzijde.

Keuken:
De gesloten keuken is gelegen aan de achterzijde van het appartement. Deze ruimte is eenvoudig ingericht met alleen een keukenblok. Vanuit de keuken heb je toegang tot het tweede balkon ideaal is om in de ochtendzon een kop koffie te drinken. De keuken biedt voldoende mogelijkheden voor modernisering.

Slaapkamers:
Het appartement beschikt over drie slaapkamers van verschillende afmetingen. De grootste slaapkamer ligt aan de voorzijde van het appartement en biedt genoeg ruimte voor een tweepersoonsbed en een grote kledingkast. De tweede slaapkamer is gelegen aan de achterzijde en heeft directe toegang tot het balkon, wat zorgt voor extra licht en een ruimtelijk gevoel. De derde slaapkamer bevindt zich aan de zijkant en is compacter, maar uitstekend geschikt als logeerkamer, werkkamer of inloopkast.

Badkamer:
De badkamer is praktisch ingericht met een douche, wastafel en de aansluiting voor de wasmachine. Net als de keuken is deze ruimte gedateerd, maar vormt juist daarom een goede basis voor een frisse, moderne renovatie. Het toilet is separaat van de badkamer.

Met twee balkons, veel ruimte en volop mogelijkheden voor persoonlijke aanpassing, is dit appartement een uitstekende kans voor wie zijn eigen woonwensen wil realiseren.

Op de begane grond heeft het appartement de beschikking over een berging met voldoende plaats voor het stallen van fietsen en dergelijke.

De servicekosten bedragen €281,08 en de stookkosten circa €86,40 per maand.

Er is voldoende parkeergelegenheid voor en achter het appartementengebouw.

Algemeen:
- Voor dit appartement is een projectnotaris van toepassing;
- Voormalig huur appartement;
- De toegevoegde plattegronden de brochure zijn indicatief, hieraan kunnen geen rechten worden ontleend.

Kenmerken

Overdracht

Vraagprijs
€ 239.000 k.k.
Vraagprijs per m²
€ 2.298
Aangeboden sinds
19 december 2025
Status
Verkocht onder voorbehoud
Aanvaarding
In overleg
Bijdrage VvE
€ 281,08 per maand

Bouw

Soort woning
Appartement
Soort appartement
Galerijflat
Bouwjaar
1970
Soort dak
Plat dak

Oppervlakten en inhoud

Oppervlakte wonen
104 m²
Oppervlakte gebouwgebonden buitenruimte
20 m²
Oppervlakte externe bergruimte
7 m²
Inhoud
319 m³

Indeling

Aantal kamers
5
Aantal slaapkamers
3
Aantal badkamers
1
Badkamervoorzieningen
Douche en wastafel
Aantal woonlagen
1
Voorzieningen
Lift en natuurlijke ventilatie

Energie

Energielabel
F
Isolatie
Gedeeltelijk dubbel glas
Verwarming
Blokverwarming
Warm water
Elektrische boiler huur

Buitenruimte

Ligging
In woonwijk
Tuin
Geen tuin

Bergruimte

Schuur/berging
Inpandig

Garage

Soort garage
Geen garage

Media

Locatie

Meer informatie?